緑が丘駅より徒歩約3分 三木市緑が丘
詳細情報
| 所在地 | 兵庫県三木市緑が丘町本町1丁目1番7 |
|---|---|
| アクセス | 神戸電鉄粟生線「緑が丘」駅 徒歩約3分 |
| 募集科目 | 不問 ※ただし、歯科は除く |
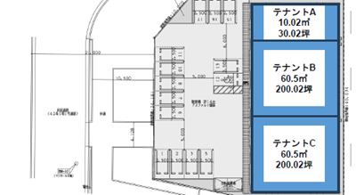
| 面積 | テナントB:200.02㎡(60.5坪) |
| 駐車場 | あり |
| 賃料 | ご相談に応じます。 |
| 保証金など | 敷金:ご相談に応じます。 |
| 備考 | ・駅近前ロータリーで開けた交差点の角に位置しています。 |
アクセスマップ
- 所在地
兵庫県三木市緑が丘町本町1丁目1番7
- アクセス
神戸電鉄粟生線「緑が丘」駅 徒歩約3分




あなたにぴったりの